Ref: 9308756
Plaza da Lexión (acceso por Rúa Manuel Rubén García Álvarez)
CP: 32002
300 €/mes
También en venta por 63.700 €
121 m2 útiles
135 m2 construídos
Estado: segunda mano
Año construcción: 1976
Emisiones: 
Propietario: 
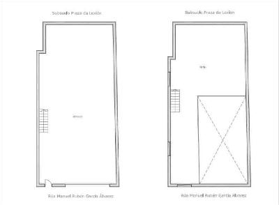
Local en bruto de 135m2 registrales, ubicado en bajo de edificio residencial, con acceso a pie de calle. Desarrollado en planta baja y entreplanta.
Con portalón de acceso para automóvil.
Sito en Plaza da Lexión (acceso por Rúa Manuel Rubén García Álvarez).
Consultar a nuestros agentes para más información.
Fotografías no contractuales
Precio válido para personas sujetas a iva con renuncia a la exención.
Algunos de los inmuebles comercializados a través de ABANCA INMOBILIARIA tienen instaladas diversas medidas de seguridad, tales como alarmas, puertas de seguridad, etc…, que no forman parte de la oferta de venta y por lo tanto, no serán objeto de transmisión junto con el inmueble, procediéndose a su retirada, de forma previa a la formalización de la escritura de compraventa.
Plaza da Lexión (acceso por Rúa Manuel Rubén García Álvarez)
Ourense
Ourense
Referencia 9308757
Local comercial
1 baños
335 m2
Calle Salvador de Madariaga
Ourense
Ourense
Referencia 9310274
Local comercial
182,6 m2
Plaza Imprenta
Ourense
Ourense
Referencia 3105474
Local comercial
133 m2
Avenida de Zamora
Ourense
Ourense
Referencia 1017584
Local comercial
2 baños
220,91 m2
Sobre ABANCA Inmuebles
Aspectos legales y de seguridad