Ref: 1020844
Lugar Igrexa
CP: 15565
30.000 €
2 Baños
116 m2 útiles
127,64 m2 construídos
Estado: segunda mano
Año construcción: 1983
Consumo:
378 kW h m2 / año
Emisiones:
78 kg CO2 m2 / año
Propietario: 
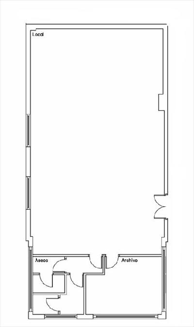
Local a reformar , de 127,64 m² (registrales construídos), ubicado en planta semisótano de edificación , con acceso a nivel de calle o mediante escaleras.
Distribuído en zona diáfana, archivo y aseos. Año de construcción 1.983.
Fotografías no contractuales
Precio válido para personas sujetas a iva con renuncia a la exención.
Algunos de los inmuebles comercializados a través de ABANCA INMOBILIARIA tienen instaladas diversas medidas de seguridad, tales como alarmas, puertas de seguridad, etc…, que no forman parte de la oferta de venta y por lo tanto, no serán objeto de transmisión junto con el inmueble, procediéndose a su retirada, de forma previa a la formalización de la escritura de compraventa.
Avenida Souto Vizoso
Narón
A Coruña
Referencia 1016638
Local comercial
265,35 m2
Calle José Fontenla Leal
Ferrol
A Coruña
Referencia 3103107
Local comercial
150 m2
Plaza Angustias
Ferrol
A Coruña
Referencia 1021311
Local comercial
114 m2
Calle Xuncal (esq. Salazón)
Ares
A Coruña
Referencia 9302682
Local comercial
171,14 m2
Sobre ABANCA Inmuebles
Aspectos legales y de seguridad