Ref: 69847
Avenida de la Universidad
CP: 28912
375.000 €
294 m2 útiles
296 m2 construídos
Estado: segunda mano
Año construcción: 1971
Consumo:
240,9 kW h m2 / año
Emisiones:
40,8 kg CO2 m2 / año
Propietario: 
Local acondicionado con una superficie registral de 292 m². Se encuentra en el casco urbano, en una calle con gran tránsito y cerca de todo tipo de servicios. Dispone de amplios ventanales que garantizan una excelente luminosidad y visibilidad, destacando su ubicación a pie de calle en la planta baja de un edificio de viviendas.
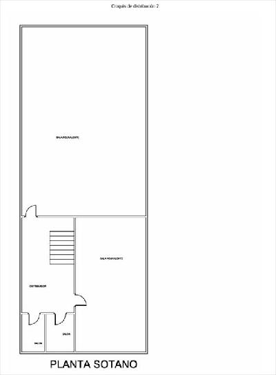
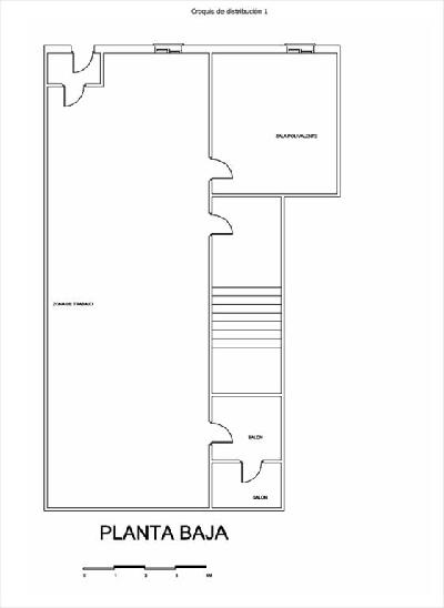
La distribución del inmueble se organiza en dos plantas:
- Planta Baja (148 m² registrales): Cuenta con un espacio diáfano ideal para zona de trabajo, dos despachos conectados, una sala polivalente y cuarto de limpieza. Desde esta planta se accede, mediante escaleras, a la planta sótano.
- Planta Sótano (144 m² registrales): Ofrece dos espacios polivalentes adicionales y aseos.
El local está totalmente acondicionado e incluye puerta blindada, sistema de alarma, aire acondicionado.
Sus dimensiones son de 14 metros de fondo y 9,3 metros de fachada.
Fotografías no contractuales
Precio válido para personas sujetas a iva con renuncia a la exención.
Algunos de los inmuebles comercializados a través de ABANCA INMOBILIARIA tienen instaladas diversas medidas de seguridad, tales como alarmas, puertas de seguridad, etc…, que no forman parte de la oferta de venta y por lo tanto, no serán objeto de transmisión junto con el inmueble, procediéndose a su retirada, de forma previa a la formalización de la escritura de compraventa.
Calle Fuenlabrada
Alcorcón
Madrid
Referencia 5456190
Local comercial
404,43 m2
Ciudad Residencial Santa Eugenia, manzana 3, bloque F, local 1C - Calle Puentelarra
Madrid
Madrid
Referencia 9311871
Local comercial
1 baños
30,8 m2
Plaza del Pueblo
Colmenar Viejo
Madrid
Referencia 69615
Local comercial
209,77 m2
Calle Cistérniga
Valladolid
Valladolid
Referencia 9306243
Local comercial
596 m2
Sobre ABANCA Inmuebles
Aspectos legales y de seguridad