Ref: 1017584
Avenida de Zamora
CP: 32005
216.600 €
También en alquiler por 1.360 €/mes
2 Baños
220,91 m2 útiles
237,12 m2 construídos
220,91 m2 de terreno
Estado: segunda mano
Año construcción: 1985
Consumo:
190,4 kW h m2 / año
Emisiones:
32,3 kg CO2 m2 / año
Propietario: 
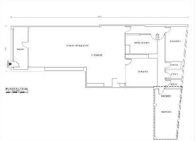
Local comercial acondicionado de 194 m², ubicado en bajo de edificio de viviendas con acceso a pie de calle. Dispone de amplios ventanales que le ofrecen mayor visibilidad y aportan luminosidad al interior.
Distribuido en zona de atencion diáfana, despacho, aseos y dos zonas de almacén amplias y funcionales. Tambien dispone de un pequeño cuarto de limpieza y una sala independiente de instalaciones.
Fotografías no contractuales
Precio válido para personas sujetas a iva con renuncia a la exención.
Algunos de los inmuebles comercializados a través de ABANCA INMOBILIARIA tienen instaladas diversas medidas de seguridad, tales como alarmas, puertas de seguridad, etc…, que no forman parte de la oferta de venta y por lo tanto, no serán objeto de transmisión junto con el inmueble, procediéndose a su retirada, de forma previa a la formalización de la escritura de compraventa.
Calle Julio Prieto Nespereira
Ourense
Ourense
Referencia 1016548
Local comercial
123,7 m2
Plaza Imprenta
Ourense
Ourense
Referencia 3105474
Local comercial
133 m2
Plaza da Lexión (acceso por Rúa Manuel Rubén García Álvarez)
Ourense
Ourense
Referencia 9308756
Local comercial
121 m2
Plaza da Lexión (acceso por Rúa Manuel Rubén García Álvarez)
Ourense
Ourense
Referencia 9308757
Local comercial
1 baños
335 m2
Sobre ABANCA Inmuebles
Aspectos legales y de seguridad