Ref: 3107438
Calle Seminario
CP: 32002
73.000 €
Antes: 86.400 €
Ha bajado un 16%
También en alquiler por 450 €/mes
1 Baño
343,6 m2 útiles
354 m2 construídos
Estado: segunda mano
Año construcción: 1993
Emisiones: 
Propietario: 
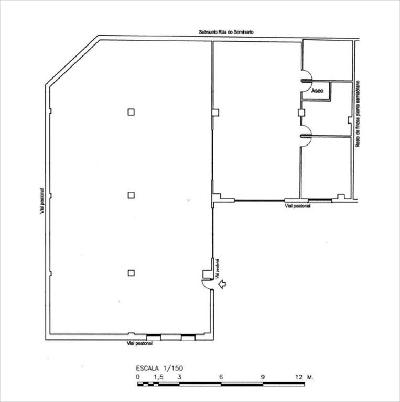
Local comercial de 354 m2, ubicado en planta semisótano de un edificio de viviendas, con acceso directo a pie de calle, acondicionado y distribuido en zona diáfana, trasteros y un aseo. No es posible el acceso de vehículos.
Fachada Principal: 10 m. Fachada Secundaria: 9,95 m. Fondo: 21,15 m. Altura libre: 3,39 m. No dispone de salida de humos.
Fotografías no contractuales
Precio válido para personas sujetas a iva con renuncia a la exención.
Algunos de los inmuebles comercializados a través de ABANCA INMOBILIARIA tienen instaladas diversas medidas de seguridad, tales como alarmas, puertas de seguridad, etc…, que no forman parte de la oferta de venta y por lo tanto, no serán objeto de transmisión junto con el inmueble, procediéndose a su retirada, de forma previa a la formalización de la escritura de compraventa.
Calle Salvador de Madariaga
Ourense
Ourense
Referencia 9310274
Local comercial
182,6 m2
Avenida de Santiago
Ourense
Ourense
Referencia 1017615
Local comercial
2 baños
184,84 m2
Plaza da Lexión (acceso por Rúa Manuel Rubén García Álvarez)
Ourense
Ourense
Referencia 9308757
Local comercial
1 baños
335 m2
Plaza da Lexión (acceso por Rúa Manuel Rubén García Álvarez)
Ourense
Ourense
Referencia 9308756
Local comercial
121 m2
Sobre ABANCA Inmuebles
Aspectos legales y de seguridad