Ref: 9308757
Plaza da Lexión (acceso por Rúa Manuel Rubén García Álvarez)
CP: 32002
99.500 €
También en alquiler por 500 €/mes
1 Baño
335 m2 útiles
384 m2 construídos
Estado: segunda mano
Año construcción: 1974
Emisiones: 
Propietario: 
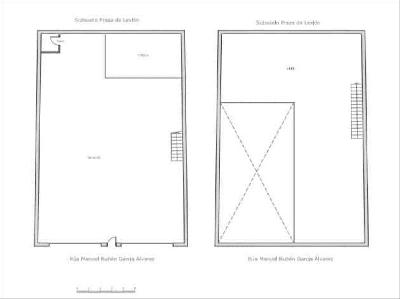
Local comercial sin acondicionar, de 384m2, ubicado en planta baja de edificio resdencial, con acceso a pie de calle.
Anteriormente dedicado a almacén de carpintería y madera. Posee una entreplanta realizada en extructura de hierro y madera. Dos puertas de acceso para automóvil. Dispone de un baño y pequeño habitáculo para oficina. Año de construcción 1.976.
Consultar a nuestros agentes para más información.
Fotografías no contractuales
Precio válido para personas sujetas a iva con renuncia a la exención.
Algunos de los inmuebles comercializados a través de ABANCA INMOBILIARIA tienen instaladas diversas medidas de seguridad, tales como alarmas, puertas de seguridad, etc…, que no forman parte de la oferta de venta y por lo tanto, no serán objeto de transmisión junto con el inmueble, procediéndose a su retirada, de forma previa a la formalización de la escritura de compraventa.
Plaza da Lexión (acceso por Rúa Manuel Rubén García Álvarez)
Ourense
Ourense
Referencia 9308756
Local comercial
121 m2
Calle Salvador de Madariaga
Ourense
Ourense
Referencia 9310274
Local comercial
182,6 m2
Plaza Imprenta
Ourense
Ourense
Referencia 3105474
Local comercial
133 m2
Avenida de Zamora
Ourense
Ourense
Referencia 1017584
Local comercial
2 baños
220,91 m2
Sobre ABANCA Inmuebles
Aspectos legales y de seguridad