Ref: 9313132
Avenida Casado del Alisal
CP: 34001
365.000 €
También en alquiler por 1.500 €/mes
4 Baños
477,06 m2 útiles
508,64 m2 construídos
Estado: segunda mano
Año construcción: 1971
Emisiones: 
Propietario: 
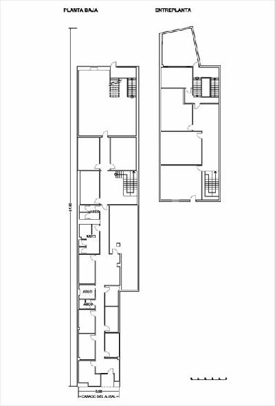
Amplio local de 508,64 m² actualmente acondicionado como oficinas. Ubicado en planta baja de edificio de viviendas con acceso a pie de calle. Engloba una segunda altura en su parte izquierda. Año de construcción 1.971.
Distribución:
- Planta baja: hall de acceso, 3 pasos, 10 despachos, 4 aseos, cuarto de instalaciones y almacén.
- Entreplanta: 2 pasos, 4 despachos, cuarto de instalaciones.
Desde la entreplanta se accede a una terraza comunitaria.
Línea de fondo 51,89m Línea de fachada 5,88m
Zona residencial con servicios en su entorno. Estación de tren y autobus a 500m.
Fotografías no contractuales
Precio válido para personas sujetas a iva con renuncia a la exención.
Algunos de los inmuebles comercializados a través de ABANCA INMOBILIARIA tienen instaladas diversas medidas de seguridad, tales como alarmas, puertas de seguridad, etc…, que no forman parte de la oferta de venta y por lo tanto, no serán objeto de transmisión junto con el inmueble, procediéndose a su retirada, de forma previa a la formalización de la escritura de compraventa.
Calle Cistérniga
Valladolid
Valladolid
Referencia 9306243
Local comercial
596 m2
Calle Conde Garay
Saldaña
Palencia
Referencia 3105710
Local comercial
4 baños
827 m2
Calle Progreso
Burgos
Burgos
Referencia 9312612
Local comercial
2 baños
133 m2
Plaza Cirilo Álvarez Martínez
Burgos
Burgos
Referencia 9312287
Local comercial
146,85 m2
Sobre ABANCA Inmuebles
Aspectos legales y de seguridad