Ref: 59504
Avenida Gondomar
CP: 36740
142.600 €
También en alquiler por 780 €/mes
2 Baños
132,75 m2 útiles
149,02 m2 construídos
Estado: segunda mano
Año construcción: 2006
Emisiones: 
Propietario: 
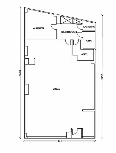
Local comercial acondicionado de 149,02 m², ubicado en planta baja de edificio residencial con acceso directo a pie de calle.
Dispone de amplios ventanales que aportan luz y visibilidad.
Distribuído en espació diáfano, almacén, aseos y cuarto de limpieza.
Zona residencial con varios servisios en su entorno.
Fotografías no contractuales
Precio válido para personas sujetas a iva con renuncia a la exención.
Algunos de los inmuebles comercializados a través de ABANCA INMOBILIARIA tienen instaladas diversas medidas de seguridad, tales como alarmas, puertas de seguridad, etc…, que no forman parte de la oferta de venta y por lo tanto, no serán objeto de transmisión junto con el inmueble, procediéndose a su retirada, de forma previa a la formalización de la escritura de compraventa.
Edificio Restaurante - El Rosal
O Rosal
Pontevedra
Referencia 5250522
Local comercial
530 m2
Calle Teixugueiras
Vigo
Pontevedra
Referencia 9314336
Local comercial
1 baños
79,8 m2
Avenida Florida (esq. Fotógrafo Xosé Gil)
Vigo
Pontevedra
Referencia 1019115
Local comercial
2 baños
193,02 m2
Calle Sanxenxo
Vigo
Pontevedra
Referencia 1142000
Local comercial
3 baños
340 m2
Sobre ABANCA Inmuebles
Aspectos legales y de seguridad