Ref: 3108760
Lugar Los Pocillos - Polígono 28, Parcela 13
CP: 16415
29.000 €
270 m2 útiles
300 m2 construídos
10.348 m2 de terreno
Estado: segunda mano
Año construcción: 2003
Emisiones: 
Propietario: 
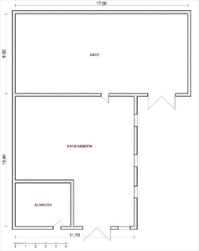
Nave industrial en forma de L de 300 m2, con dos espacios diáfanos, uno de ellos cerrado completamente y el otro con cubierta pero abierto en la parte superior del paramento lateral.
Fotografías no contractuales
Precio válido para personas sujetas a iva con renuncia a la exención.
Algunos de los inmuebles comercializados a través de ABANCA INMOBILIARIA tienen instaladas diversas medidas de seguridad, tales como alarmas, puertas de seguridad, etc…, que no forman parte de la oferta de venta y por lo tanto, no serán objeto de transmisión junto con el inmueble, procediéndose a su retirada, de forma previa a la formalización de la escritura de compraventa.
Polígono Industrial 2 - Calle A - Polígono 5, Parcela 370
Cintruénigo
Navarra
Referencia 9312505
Nave industrial
554,63 m2
Polígono Industrial 2 - Calle A - Polígono 5, Parcela 370
Cintruénigo
Navarra
Referencia 9312503
Nave industrial
549,67 m2
Polígono Industrial - Calle F
Cintruénigo
Navarra
Referencia 3103994
Nave industrial
4.624,7 m2
Camino Foyes Ferraes
l'Alcora
Castellón
Referencia 3105571
Nave industrial
391,1 m2
Sobre ABANCA Inmuebles
Aspectos legales y de seguridad