Ref: 80148
Travesía Zumbajarros
CP: 23004
1 Hab.
1 Baño
70,09 m2 útiles
89,57 m2 construídos
54 m2 de terreno
Estado: segunda mano
Año construcción: 1958
Emisiones: 
Propietario: 
Aprovecha esta oportunidad para crear tu proyecto.
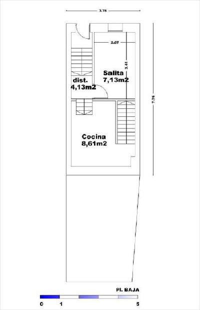
Vivienda unifamiliar adosada de 70 m2 útiles, para rehabilitación integral.
Desarrollada en dos plantas. Planta baja distribuída en salón y cocina planta alta dispone de un dormitorio, baño y patio/terraza con vistas abiertas y soleada.
Zona residencial con servicios en el entorno y cercano a zonas verdes, con parada de autobus a solo 3min andando.
Hospital a 1.2km y estacion de tren a 2km. Bien comunicada.
Fotografías no contractuales
Precios sin impuestos. Más información en nuestro blog Impuestos a pagar en la compra de una vivienda de segunda mano
Algunos de los inmuebles comercializados a través de ABANCA INMOBILIARIA tienen instaladas diversas medidas de seguridad, tales como alarmas, puertas de seguridad, etc…, que no forman parte de la oferta de venta y por lo tanto, no serán objeto de transmisión junto con el inmueble, procediéndose a su retirada, de forma previa a la formalización de la escritura de compraventa.
Calle Acacias
Cúllar
Granada
Referencia 9312485
Vivienda aislada
3 habs.
3 baños
112,93 m2
Calle Sierra
Argamasilla de Calatrava
Ciudad Real
Referencia 84273
Vivienda aislada
4 habs.
3 baños
105,08 m2
Calle Santa Ana
Los Navalmorales
Toledo
Referencia 9311076
Vivienda aislada
51,33 m2
Calle Ramón y Cajal
Llera
Badajoz
Referencia 9313410
Vivienda aislada
4 habs.
1 baños
118 m2
Sobre ABANCA Inmuebles
Aspectos legales y de seguridad