Ref: 9311076
Calle Santa Ana
CP: 45140
24.800 €
51,33 m2 útiles
75 m2 construídos
137 m2 de terreno
Estado: segunda mano
Año construcción: 1999
Emisiones: 
Propietario: 
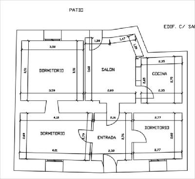
Vivienda unifamiliar entre medianeras de 51,33 m2 útiles, para reformar. Desarrollada en una planta, distribuida en recibidor, salón, comedor con acceso a parcela de 137 m2, cocina independiente sin amueblar, dos dormitorios y un baño.
Zona residencial con ervicios en su entorno. A 1h de la ciudad de Toledo.
Fotografías no contractuales
Precios sin impuestos. Más información en nuestro blog Impuestos a pagar en la compra de una vivienda de segunda mano
Algunos de los inmuebles comercializados a través de ABANCA INMOBILIARIA tienen instaladas diversas medidas de seguridad, tales como alarmas, puertas de seguridad, etc…, que no forman parte de la oferta de venta y por lo tanto, no serán objeto de transmisión junto con el inmueble, procediéndose a su retirada, de forma previa a la formalización de la escritura de compraventa.
Calle Sierra
Argamasilla de Calatrava
Ciudad Real
Referencia 84273
Vivienda aislada
4 habs.
3 baños
105,08 m2
Calle Rosario
San Pedro de Rozados
Salamanca
Referencia 9313653
Vivienda aislada
5 habs.
2 baños
150 m2
Calle Ramón y Cajal
Llera
Badajoz
Referencia 9313410
Vivienda aislada
4 habs.
1 baños
118 m2
Calle Posito
Vezdemarbán
Zamora
Referencia 3107947
Vivienda aislada
4 habs.
1 baños
106 m2
Sobre ABANCA Inmuebles
Aspectos legales y de seguridad