Ref: 9310515
Calle Fontáns
CP: 36214
270.200 €
6 Habs.
2 Baños
138,59 m2 útiles
161,42 m2 construídos
Estado: segunda mano
Año construcción: 1960
Consumo:
452,8 kW h m2 / año
Emisiones:
76,7 kg CO2 m2 / año
Propietario: 
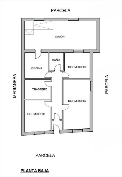
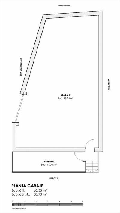
Vivienda de 138,59 m², desarrollada en dos plantas. Distribución de planta semisótano: porche descubierto, salita con terraza cubierta a patio trasero, tres dormitorios y un baño. Distribucion de planta baja: salón con chimenea, cocina independiente amueblada, tres sormitorios, zona de trastero y un baño. Dispone de patio trasero con pequeña zona ajardinada, donde se ubica zona anexa de perrera y garaje.
Año de construcción 1.959, ultima reforma 1.999. Zona residencial a 3km del centro de la ciudad de Vigo.
Fotografías no contractuales
Precios sin impuestos. Más información en nuestro blog Impuestos a pagar en la compra de una vivienda de segunda mano
Algunos de los inmuebles comercializados a través de ABANCA INMOBILIARIA tienen instaladas diversas medidas de seguridad, tales como alarmas, puertas de seguridad, etc…, que no forman parte de la oferta de venta y por lo tanto, no serán objeto de transmisión junto con el inmueble, procediéndose a su retirada, de forma previa a la formalización de la escritura de compraventa.
Lugar Vilas
Gondomar
Pontevedra
Referencia 3400020
Vivienda aislada
230,46 m2
Lugar Guntín (Barreiros)
Gondomar
Pontevedra
Referencia 1014258
Vivienda aislada
181,04 m2
Lugar San Ciprián
Gondomar
Pontevedra
Referencia 3104026
Vivienda aislada
4 habs.
3 baños
192,15 m2
Lugar Gorgoreiro 2 - Polígono 37, Parcela 101
Pazos de Borbén
Pontevedra
Referencia 9311805
Vivienda aislada
40 m2
Sobre ABANCA Inmuebles
Aspectos legales y de seguridad