Ref: 9310409
Calle Vázquez
CP: 36590
76.800 €
También en alquiler por 460 €/mes
2 Baños
124,18 m2 útiles
127,79 m2 construídos
Estado: segunda mano
Año construcción: 2007
Consumo:
371,9 kW h m2 / año
Emisiones:
63 kg CO2 m2 / año
Propietario: 
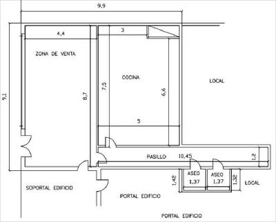
Local acondicionado de 127,79 m², ubicado en bajo de edificio residencial con acceso a pie de calle. Uso anterior panadería.
Dispone de amplio escaparate que aporta visibilidad y luz natural.
Distribuído en zona de atencion al cliente, pasillo donde se encuentran los aseos, y amplia estancia de cocina semiamueblada.
Zona residencial con servicios.
Fotografías no contractuales
Precio válido para personas sujetas a iva con renuncia a la exención.
Algunos de los inmuebles comercializados a través de ABANCA INMOBILIARIA tienen instaladas diversas medidas de seguridad, tales como alarmas, puertas de seguridad, etc…, que no forman parte de la oferta de venta y por lo tanto, no serán objeto de transmisión junto con el inmueble, procediéndose a su retirada, de forma previa a la formalización de la escritura de compraventa.
Calle Matemático Rodríguez
Lalín
Pontevedra
Referencia 1019096
Local comercial
276,86 m2
Lugar Ponte
Boqueixón
A Coruña
Referencia 1019005
Local comercial
1 baños
77,84 m2
Carretera de Ourense
Forcarei
Pontevedra
Referencia 1018757
Local comercial
2 baños
127,9 m2
Avenida de Vigo
A Estrada
Pontevedra
Referencia 3108207
Local comercial
70 m2
Sobre ABANCA Inmuebles
Aspectos legales y de seguridad