Ref: 83585
Calle Tomás Alonso
CP: 36208
A consultar
3.545 m2 de terreno
Propietario: 
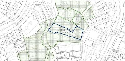
Suelo urbano no consolidado.
Ámbito de Planeamiento "Artística - Ramón Soler", 36208 Vigo.
Porcentaje orientativo de participación en el ámbito urbanístico 19% ABANCA.
Ref. Catastral: parte de 1750509NG2715S0001RK
Superficie suelo registral: 3.545 m²s
NOTA RELEVANTE:
Se recomienda comprobacion de los usos y actividades permitidos por parte del comprador.
Para más información consultar ficha comercial
Fotografías no contractuales
Precios sin impuestos. Más información en nuestro blog Impuestos a pagar en la compra de una vivienda de segunda mano
Algunos de los inmuebles comercializados a través de ABANCA INMOBILIARIA tienen instaladas diversas medidas de seguridad, tales como alarmas, puertas de seguridad, etc…, que no forman parte de la oferta de venta y por lo tanto, no serán objeto de transmisión junto con el inmueble, procediéndose a su retirada, de forma previa a la formalización de la escritura de compraventa.
Camino Seara
Vigo
Pontevedra
Referencia 9306503
Suelo urbanizable
3.278,7 m2
Camiño da Serra
Vigo
Pontevedra
Referencia 9302236
Suelo urbanizable
207 m2
Calle Virgen del Pilar
Baiona
Pontevedra
Referencia 1015239
Suelo urbanizable
183 m2
Carretera Circunvalación A Guarda-Bayona (S.U.P.2) - Polígono 18, Parcela 92
A Guarda
Pontevedra
Referencia 9307828
Suelo urbanizable
23.014 m2
Sobre ABANCA Inmuebles
Aspectos legales y de seguridad