Ref: 9308836
Calle Cimadevilla
CP: 33003
480.000 €
También en alquiler por 2.000 €/mes
2 Baños
280 m2 útiles
300 m2 construídos
Estado: segunda mano
Año construcción: 1976
Emisiones: 
Propietario: 
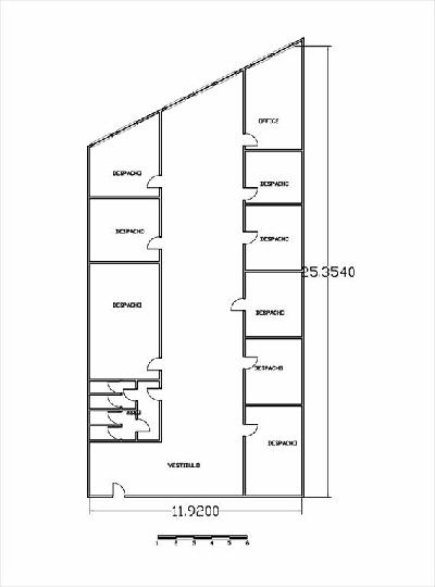
Amplio local de 300 m², luminoso y ubicado en edificio del casco histórico de la ciudad de Oviedo.
Local distribuido en vestíbulo, espacio diáfano central, ocho estancias acristaladas y aseos.
Año de construcción 1.979, habiéndose llevado a cabo rehabilitación integral del inmueble en el año 2.010.
Fotografías no contractuales
Precio válido para personas sujetas a iva con renuncia a la exención.
Algunos de los inmuebles comercializados a través de ABANCA INMOBILIARIA tienen instaladas diversas medidas de seguridad, tales como alarmas, puertas de seguridad, etc…, que no forman parte de la oferta de venta y por lo tanto, no serán objeto de transmisión junto con el inmueble, procediéndose a su retirada, de forma previa a la formalización de la escritura de compraventa.
Calle Valeriano León
Siero
Asturias
Referencia 3109895
Local comercial
385,59 m2
Calle Ramón y Cajal
Avilés
Asturias
Referencia 3105749
Local comercial
2 baños
110,87 m2
Avenida Mariano Andrés
León
León
Referencia 1019277
Local comercial
2 baños
288 m2
Calle Alfonso V
León
León
Referencia 3109834
Local comercial
136,36 m2
Sobre ABANCA Inmuebles
Aspectos legales y de seguridad